|
| DIY巧者に住み継いでほしい家 |
| お問合番号:10374 |
カナダ人の前居住者がDIYマニアで、その腕前を見込んで様々な造作を許容してきた家。出来栄えがいいので、その多くを原状回復せずにそのまま残しています。
「神は細部に宿る」とはよく言ったもので、ディテールの収まりが素晴らしいので可動部分も含めて長持ちしますね。圧巻はすべて造作されたキッチン。自分で調理もするだけあって動線を考えた設計がユニークだし、それを汎用材料で実現しているのが素晴らしい。
そしてこの度、帰国されたので募集するのだが、やはりDIY思考の方と出会い、住み継いでもらえればと考えています。以前の募集が2015年なので11年前。この11年間で、DIY界隈もずいぶん一般化した。なので、敢えて「DIY思考」とさせていただいた。つまり、実際の現場をDIYしてください、というのではなく(もちろんWLCOMEですが)、考え方がDIY思考な方がいいなと。
こんなマニアックな表現に!とくる方、ご紹介ください。
前回募集時のコピーはこちら↓
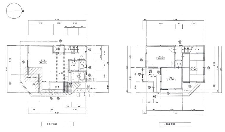
足の神様、服部天神にほど近いコンパクトで閑静な、それでいて歴史を感じさせる不思議な雰囲気のある街の一軒家。1階は水廻りとリビングダイニング、2階に3部屋の小さなオウチ。もちろんそのままでも住めますがDIYでカスタマイズしてもOK.
ご家族でも住めますが2~3人のシェア暮らしにもOK.
南側はサンルームを増築するほど明るいので、1階をリノベーションしてセミオープンなお店、オウチカフェもイメージできました。作られたような高級感のない落ち着いた街並みなのでアリだと思うなあ。
|
| |
|
|
 |
| 合資会社マットシティ |
|
06-6314-6408 大阪市中央区北浜東1-15 ビル・リバーセンター6階
大阪府知事(4)第54714号 |
|
| <情報登録日:2026-03-28 > |
|
 DIYキッチン
 ダストボックス収納
 包丁収納
 ワークデスク
 南島角地のサンルームのある外観
 1Fスケッチ
 2Fスケッチ
|
|
|