|
| ツタのからまるレトロビル2 |
| お問合番号:10604 |
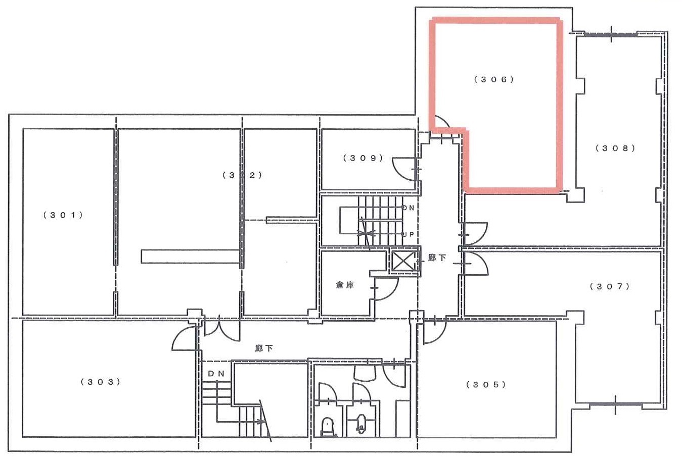
甲子園球場から株分けされたツタが外壁面に生い茂る近代建築、と言えばの「青山ビル」3階の小部屋。船場の近代建築群の中でもリーダー的な存在になりつつありますが、元は個人宅として建築され、戦禍を免れて貸しビルとして再生されました(歴史かなり端折りました(-_-;)。小さなレトロビルの味わいが好感され、個人店舗、ギャラリー、クリエイターなどが多く入居しています。今回募集の部屋の窓からは中庭に面した窓から優しい陽の光が差し込む、船場の奥座敷の雰囲気で、ビジネス街の喧騒を忘れさせてくれます。
そして今なら隣接の部屋も同時に借りることができますので、繋げて一室として使うことも可能です。その場合の条件は下記。
面積:61.15?(18.5坪) 賃料:295,900円/月 共益費:40,700円 保証金:1,000,000円 敷引:2か月分
|
| |
|
|
 |
| 合資会社マットシティ |
|
06-6314-6408 大阪市中央区北浜東1-15 ビル・リバーセンター6階
大阪府知事(4)第54714号 |
|
| <情報登録日:2025-08-27 > |
|

 【PHOTO:高岡伸一】
 室内の様子
 室内の様子2
 中庭に面した窓
 室内(見返し)
|
|
|